广州母女在闹市区中的家,80㎡宽敞自在,日常生活生活组织工作小贴士
这套80万平方米的新房子坐落于广州,是母女三个人给小孩买的学区房,尽管内部空间占地面积并并非极为大,但周遭的自然环境极为得天独厚,夫妻俩日常生活定居出来也极为的难受。
考虑到这是两套买房人大房,因此雕塑家展开了更运动性上的修正,满足用户一间四口人急速变动的日常生活生活须要,让内部空间充分发挥出高有的是机能和商业价值,让小学生能保有两个更为民主自由欢乐地高速成长内部空间,撷取给我们观赏呵呵。

住宅洋房:二室
住宅占地面积:80万平方米
家装财政预算:30万
所在城市:广州
主要建材:大理石材、烤漆玻璃、天然木皮、进口耐磨地板、特殊磁漆

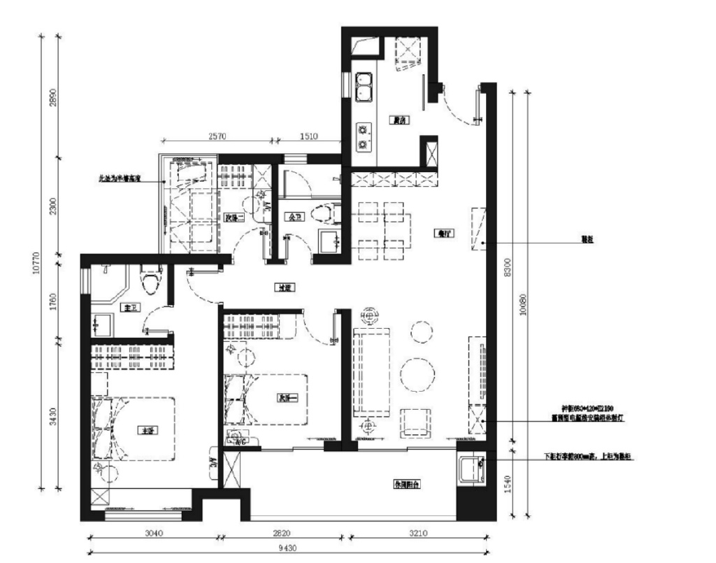
【洋房图】

新房子在格局上并没有展开修正。这样主要是为了节省成本,在原有内部空间基础上,对机能区展开细致优化,餐厅增加了之前缺少的餐边柜,次卧占地面积过小,展开适当的扩充,尽可能地提升内部空间的实际利用商业价值。

【客厅】


设计重点:强调软装配色
客厅在软装上并没有展开太大的改动,背景墙根据软装的搭配来重新修正了相应的配色,让内部空间内部保有两个更为协调的氛围感。


细腻的布艺沙发搭配条纹抱枕,又选择了棉麻材质的地毯,让整个公共内部空间都散发着一种自然的肌理感。


客厅的细节极为值得探究,每两个角落都展开了精心的修正,充分满足用户了业主对于品质上的要求。

大量的原木家具大部分是现场定做的,不仅进一步的烘托内部空间的自然氛围,也巧妙地地对业主减少财政预算。

小巧的家具主要方便日常生活的移动,让小学生可以在客厅之中自有的是活动,享受两个不受约束感的内部空间。


温柔的浅蓝色烘托出内部空间的清新,不论室外多么的寒冷,家里总是如同春天一般温暖。
【卫生间】

设计重点:结构更为紧凑
卫生间同样在结构上没有展开太大的修正,而是重新梳理了每两个机能区的关系,让业主使用出来更为的便捷。
【卧室】


设计重点:保持内部空间的帖服感
卧室利用原来的飘窗,合理地规划出两个大容量的储物内部空间,并且采用了隐藏式的设计手法,让内部空间更为的高效和干练。


整体的配色依旧保持着公共内部空间的一致,让动静区形成更为微妙和紧凑的互动。
梳妆台也可以作为两个阅读内部空间使用,丰富了整个内部空间内部的机能,提升了日常生活的日常生活生活格调。


造型别致的吊灯及具有时尚感,和整个内部空间形成了恰到好处的搭配。


背景墙选择了,更为具有立体感的挂衣架,平时也可以作为装饰品使用,很好地修饰了整个内部空间的格局。


另一间卧室主要是以干净简单为主,收纳内部空间也展开了足够的保证,整体更为得张弛有度。


不对称的床头灯起到了很好的烘托效果,让整个内部空间散发着一种别样的气质。
细腻唯美的元素让整个内部空间变得更为优雅。

窗外的阳光折射到室内,让卧室也变得更为柔和。
【餐厅】


设计重点:艺术调性得到保证
餐厅同样以餐桌作为内部空间的中轴线,营造出两个更为自然和充满艺术格调的就餐区域。


餐桌的款式是特意挑选的,平时可以根据就餐人数实现桌面的长短变动,满足用户超多的机能性需求。

新增设的餐边柜也很好地起到了收纳的效果,弥补了储物内部空间不足的问题。

白色的背景墙并没有过多的修饰,利用小巧的装饰挂画展开点缀,巧妙提升了内部空间的格调美感。
【书房】



设计重点:尽可能地减少内部空间缝隙
书房是其中一间次卧。原来的占地面积比较小。为了能高效利用内部空间,全屋都定制了不同规格的橱柜。



小巧地悬空书桌搭配绿色的丝绒凳子,让内部空间散发着一种独特的时尚和摩登气息。
旁边还增加了,可以收纳的单人床,组织工作累了,就可以在旁边暂时休息呵呵,让内部空间整体更为的从容。
【厨房】

设计重点:享受更为干练的氛围感
厨房的整个内部空间变动幅度最小,保持内部空间的高度整洁,让业主的烹饪更为舒心。

整个内部空间给予了更多的民主自由感,让业主夫妻俩去感知日常生活生活中的点滴,幸福和浪漫。
【图片若有侵权,麻烦私信删稿】
发表评论